VINEYARD אשקלון
שכונת "עיר היין"
להמחשה בלבד

VINEYARD אשקלון
אשקלון • עמישב 21, אשקלון
תמהיל הפרוייקט: 6 בניינים, 342 יח"ד
אופי הקהילה: מעורב
אופי הקהילה: מעורב
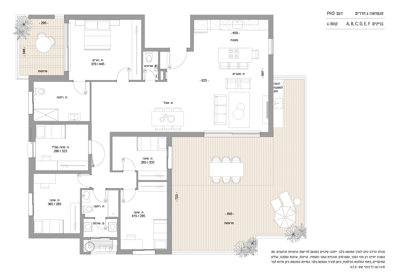
פרויקט Vineyard אשקלון מצטיין במיקום מעולה בשכונה החדשה, בתכנון קפדני וייחודי ומגוון דירות איכותיות. והכל בשכונת עיר היין הנהנית ממיקום ותשתיות מתקדמות, באחת הערים המבטיחות בישראל. הפרויקט כולל שלושה מתחמי מגורים: הבוצר, הכורם והיוגב. בכל אחד מהם יהיו 2 בניינים בני 7 קומות, הממוקמים סביב לחצר פנימית, סגורה ובטוחה. בכל אחד ממתחמי המגורים ייבנו דירות רחבות ידיים בתמהיל דירות של 4, 5 ו- 6 חדרים הכוללים מיני פנטהאוזים ופנטהאוזים. לכל דירה מרפסת רחבת ידיים, סוויטת הורים גדולה ומפנקת, מחסן וחניה אחת לפחות.
הודעה אחרונה מהיזם: החלה הבניה ! בפרויקט מפרט יוקרתי הכולל מערכת מיזוג מיני מרכזית מחסן וחניה לכל דירה !
תמהיל הדירות בפרויקט
4 חד5 חדמיני פנטהאוזפנטהאוז 5 חדריםפנטהאוז 6 חדרים
לתכנון תקציב
לשיחה עם משווק הפרויקט
מלאו פרטים ומשווק הפרויקט יחזור אליכם בהקדם
שלום, ברוך הבא לקהילת שכונת עיר היין
בקהילת השכונה תוכלו לצפות בחברים שהתעניינו בשכונת עיר היין, ליצור איתם קשר דרך דף הפייסבוק שלהם ולהחליף מידע.
קהילת "עיר היין"

משפחת ביטון אביחי 27 לירן 28 הראל דוד 3 איתן חיים שנה
פזם: שנתיים
למה דווקא אשקלון?
אביחי: כל חיי גדלתי באשקלון ואני מחובר לעיר הזאת. לאחר נישואינו גרנו תקופה בתל אביב ולאחר מכן החלטנו לחזור לאשקלון. מבחינה כלכלית יותר נוח לגור פה וגם מבחינת החומר האנושי, באשקלון יש אנשים מדהימים וחמים.
יש במקום אוירה קהילתית? איך היא מתבטאת?
בתחילה לא היתה כאן קהילה מגובשת, הגענו מתל אביב ששם היינו חלק מקהילה וזה היה מאד חסר לנו. וכך התחלנו בתהליך הקמת הגרעין הפועל היום.
הגרעין מונה כ30 משפחות ואחראי על מגוון אירועים ופעילויות למשל: פעילויות סביב החגים, מניין ערבית ואחריו שיעור תורה, עזרה ליולדות, פעילויות של תרומה לקהילה, ג'ימבורי לילדים.
אנו עובדים כרגע על הקמה של גן תורני בשכונה שלנו, שכונת ברנע.
עוד דבר שהגרעין אחראי עליו הוא קליטת עליה מארה"ב, יחד עם ארגון "נפש בנפש" אנו קולטים עולים חדשים לגרעין.
מה אתם עושים בשעות אחר הצהריים?
הילדים מבלים בעיקר בג'ימבורי שנמצא בשכונה, וגם ישנו גן שעשועים שחברי הקהילה לרוב נפגשים בו.
מעבר לכך ישנה בשכונה קהילה גדולה של לומדים בראשם הרב יעקב בן שמעון. ואנו לעיתים לוקחים חלק בתפילות ובשיעורי התורה.
ליצירת קשר והצטרפות לגרעין: אביחי 0524543620 / avihaybit@gmail.com.
לכתבה המלאה
דירוגי גולשים לשכונה
חברתי
סביבתי
נגישות
מה אתה חושב על השכונה או הישוב?
לחץ לדירוג

הכר את השכונה שלך 16607








































