אחד העם 61
שכונת "מרכז העיר פ"ת"
להמחשה בלבד

אחד העם 61
פתח תקוה • אחד העם 61
תמהיל הפרוייקט: 1 בניינים, 35 יח"ד
אופי הקהילה: מעורב
אופי הקהילה: מעורב
אחד העם 61 – פתח תקווה
מגורי איכות בקהילה ערכית ומתחדשת
בלב שכונה מבוססת בפתח תקווה, מוקם פרויקט בוטיק חדש ואקסקלוסיבי, המיועד למשפחות ולזוגות המחפשים איכות מגורים גבוהה, סביבה ערכית וחיי קהילה משמעותיים.
הפרויקט כולל בניין מגורים אינטימי בן מספר קומות, עם תכנון מוקפד, אדריכלות מודרנית וסטנדרט בנייה גבוה – תוך הקפדה על פרטיות, נוחות ואווירה משפחתית.
תכנון ואיכות ללא פשרות
הודעה אחרונה מהיזם:
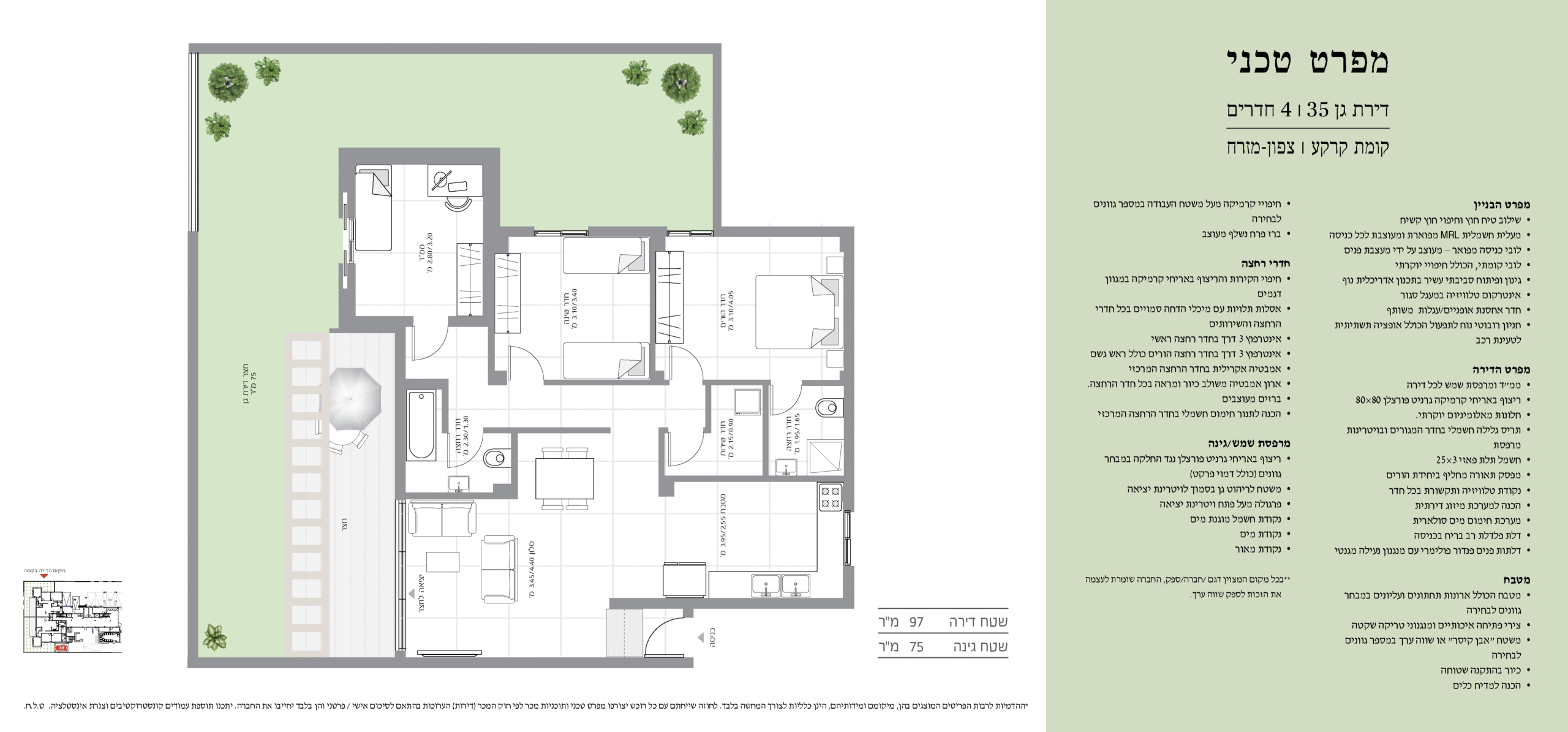
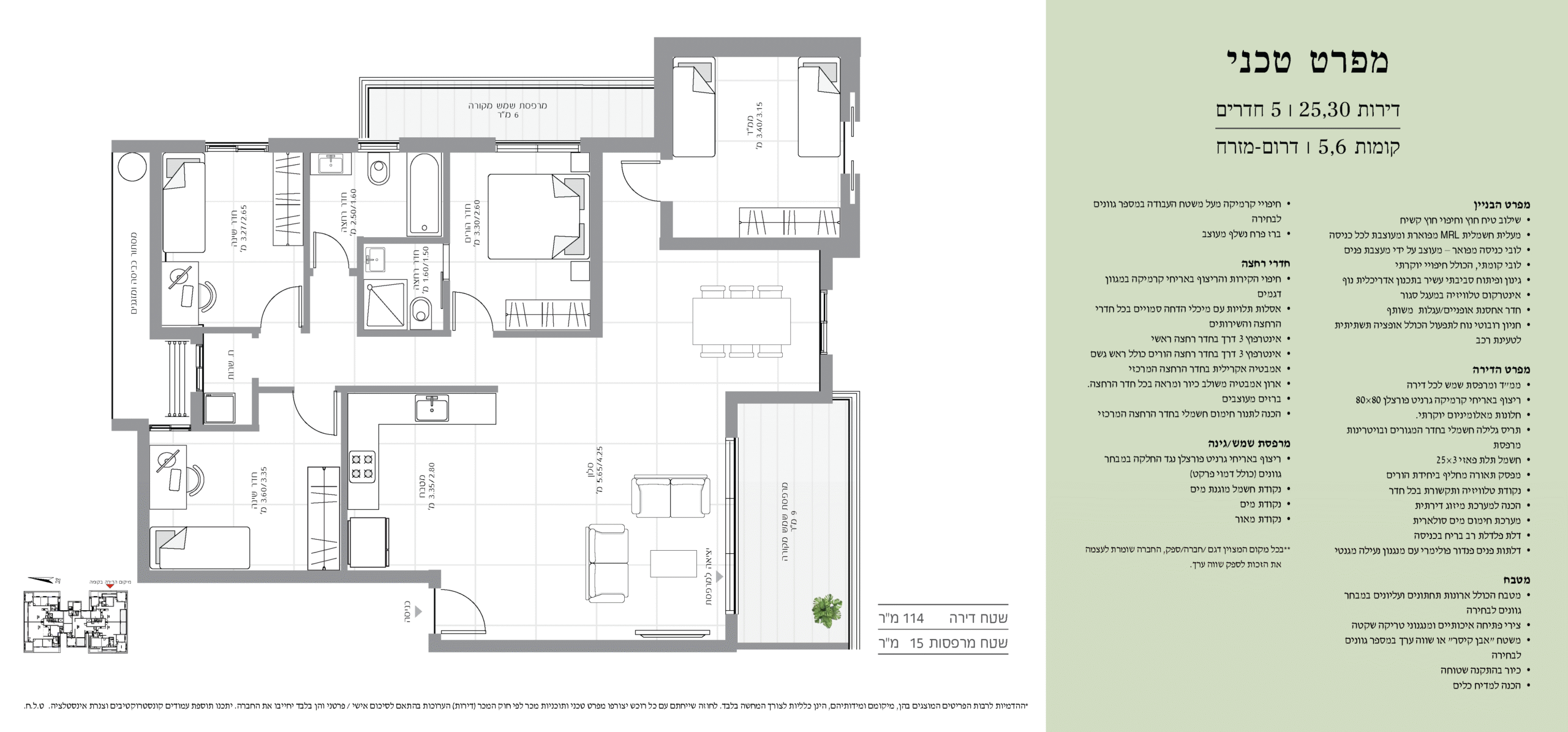
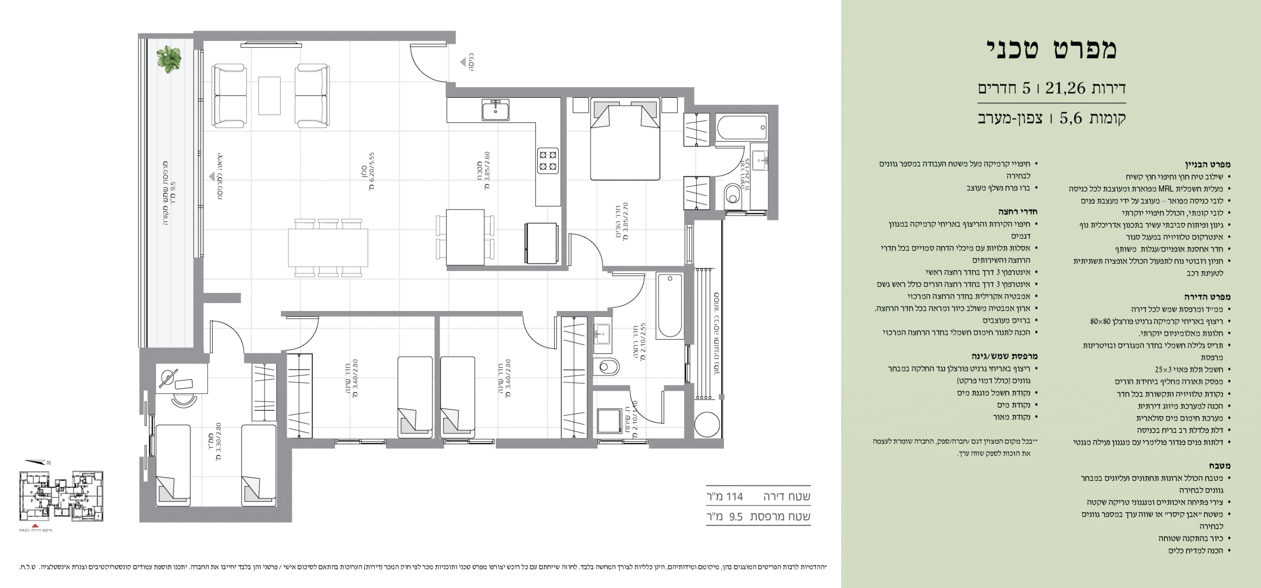
דירות חמישה חדרים מקומה חמש ומעלה, 108-114 מ"ר בנוי, עם מרפסות [אפשרות לסוכה] עד 16 מ"ר וחניה החל מ 2,490,000 ש"ח. החל שיווק הפריסייל במחירים מיוחדים והסדר תשלום מיוחד ללא הצמדה למדד! בניין בוטיק שבע קומות בלבד! התקבל היתר!
תמהיל הדירות בפרויקט
5 חד6 חד'דירות גן 4 חד'פנטהאוז 4 חדרים
לתכנון תקציב
מקומה חמש ומעלה, 108-114 מ"ר בנוי עם מרפסות [אפשרות לסוכה] עד 16 מ"ר, מיזוג אוויר וחניה! ללא מדד! 5 חדרים החל מ-
₪2,490,000
לשיחה עם משווק הפרויקט
מלאו פרטים ומשווק הפרויקט יחזור אליכם בהקדם
שלום, ברוך הבא לקהילת שכונת מרכז העיר פ"ת
בקהילת השכונה תוכלו לצפות בחברים שהתעניינו בשכונת מרכז העיר פ"ת, ליצור איתם קשר דרך דף הפייסבוק שלהם ולהחליף מידע.
קהילת "מרכז העיר פ"ת"
משפחת קליין מונה 4 נפשות: גרי(32), חן(28), יובל (4) מתן (1) והם סיפרו לי על השכונה מהזווית של משפחה צעירה.
כמה זמן אתם גרים בפ"ת?
3 שנים.
למה החלטתם לבוא דווקא לפ"ת?
בחרנו לגור פה בגלל המגוון של האוכלוסייה, השכונה היא מעורבת וגרים בה דתיים וחילונים. קיים שם גיוון גם בתוך החברה הדתית עצמה.
וגם חיפשנו מקום שיהיה קרוב לעבודה ולא יקר.
מה אתם הכי אוהבים בשכונה?
הכי אוהבים את זה שמצד אחד זו עיר במרכז הארץ כך שהיא קרובה להכל, ומצד שני אין רעש ובלאגן מרגישים את השקט, זה כמו מושב בתוך עיר.
ויש הרבה משפחות צעירות בסטטוס דומה לשלנו, קל למצוא מכנה משותף.
לסיום, תארו לי אחר הצהריים טיפוסי אצלכם.
חן: אחרי שאני אוספת את הילדים מהגנים לפעמים נשארים בבית ולפעמים יורדים לגינה לשחק, לאחרונה שיפצו את הגינה שנמצאת ברחוב יהודה הנשיא, שם נפגשים עם חברים מהקהילה או מהגן.
גם בשבתות אגב הגינות המרכזיות מלאות.
לחץ כאן לכתבה המלאה
כמה זמן אתם גרים בפ"ת?
3 שנים.
למה החלטתם לבוא דווקא לפ"ת?
בחרנו לגור פה בגלל המגוון של האוכלוסייה, השכונה היא מעורבת וגרים בה דתיים וחילונים. קיים שם גיוון גם בתוך החברה הדתית עצמה.
וגם חיפשנו מקום שיהיה קרוב לעבודה ולא יקר.
מה אתם הכי אוהבים בשכונה?
הכי אוהבים את זה שמצד אחד זו עיר במרכז הארץ כך שהיא קרובה להכל, ומצד שני אין רעש ובלאגן מרגישים את השקט, זה כמו מושב בתוך עיר.
ויש הרבה משפחות צעירות בסטטוס דומה לשלנו, קל למצוא מכנה משותף.
לסיום, תארו לי אחר הצהריים טיפוסי אצלכם.
חן: אחרי שאני אוספת את הילדים מהגנים לפעמים נשארים בבית ולפעמים יורדים לגינה לשחק, לאחרונה שיפצו את הגינה שנמצאת ברחוב יהודה הנשיא, שם נפגשים עם חברים מהקהילה או מהגן.
גם בשבתות אגב הגינות המרכזיות מלאות.
דירוגי גולשים לשכונה
חברתי
סביבתי
נגישות
מה אתה חושב על השכונה או הישוב?
לחץ לדירוג
פורום שכונת "מרכז העיר פ"ת"
+ הודעה חדשה
- מיקום השכונה??
בועז- 23/06/15 18:15

הכר את השכונה שלך 22122
































