להמחשה בלבד

NAVE PARK פתח תקווה
פתח תקוה • דוד טבצ’ניק, נווה גן, פתח תקווה
תמהיל הפרוייקט: 5 בניינים, 750 יח"ד
אופי הקהילה: מעורב
אופי הקהילה: מעורב
5 מגדלים בני 31 קומות עם 750 יח"ד ברחוב דוד טבצ'ניק, נווה גן. הפרויקט נמצא במרחק הליכה
מתחנת הרכבת הקלה וקניון עופר הגדול.
נווה גן פתח תקווה בעיצוב אדריכלי מוקפד, לובי מפואר, דירות מרווחות בעלות מרפסות גדולות וחניה תת קרקעית
לכל דירה. הפרויקט נמצא בקרבה לעיר תל אביב וצמוד לשדרה הירוקה - שדרת המגדלים נוף מרהיב
מתחנת הרכבת הקלה וקניון עופר הגדול.
נווה גן פתח תקווה בעיצוב אדריכלי מוקפד, לובי מפואר, דירות מרווחות בעלות מרפסות גדולות וחניה תת קרקעית
לכל דירה. הפרויקט נמצא בקרבה לעיר תל אביב וצמוד לשדרה הירוקה - שדרת המגדלים נוף מרהיב
הודעה אחרונה מהיזם:
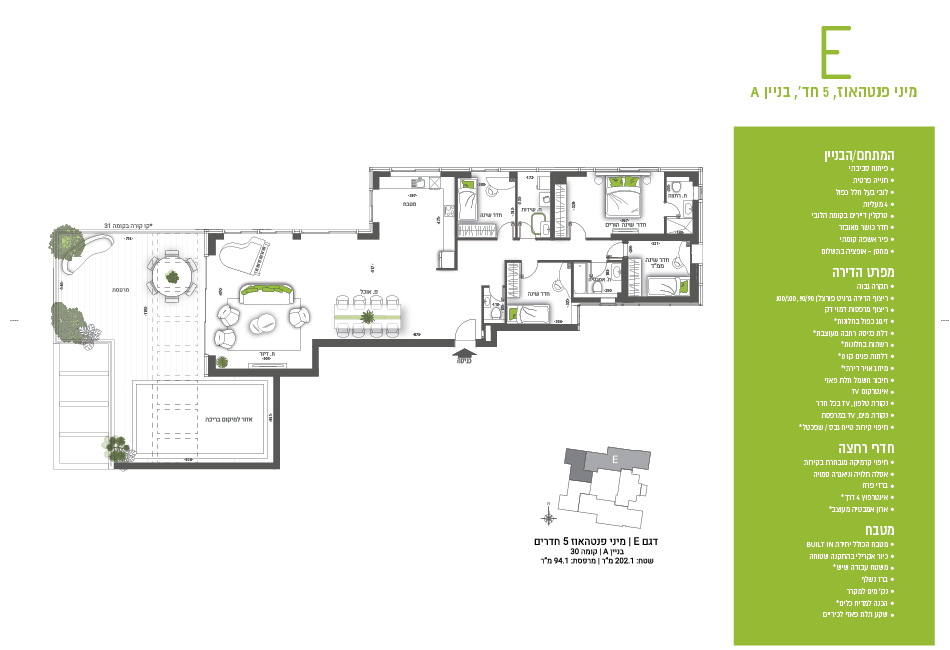
מפרט עשיר ומפנק הכולל מיזוג אוויר עם הנמכות תקרה! הסדר תשלום גמיש ומותאם! הבניה בעיצומה! חדר כושר פרטי לדיירי הפרויקט! דירות חמישה חדרים מקומה ארבע ומעלה, 124 מ"ר בנוי, מרפסת 21 מ"ר וחניה מקורה.
תמהיל הדירות בפרויקט
5 חדמיני פנטהאוז6 חד'
לתכנון תקציב
לשיחה עם משווק הפרויקט
מלאו פרטים ומשווק הפרויקט יחזור אליכם בהקדם
שלום, ברוך הבא לקהילת שכונת נווה גן
בקהילת השכונה תוכלו לצפות בחברים שהתעניינו בשכונת נווה גן, ליצור איתם קשר דרך דף הפייסבוק שלהם ולהחליף מידע.
קהילת "נווה גן"
משפחת קליין מונה 4 נפשות: גרי(32), חן(28), יובל (4) מתן (1) והם סיפרו לי על השכונה מהזווית של משפחה צעירה.
כמה זמן אתם גרים בפ"ת?
3 שנים.
למה החלטתם לבוא דווקא לפ"ת?
בחרנו לגור פה בגלל המגוון של האוכלוסייה, השכונה היא מעורבת וגרים בה דתיים וחילונים. קיים שם גיוון גם בתוך החברה הדתית עצמה.
וגם חיפשנו מקום שיהיה קרוב לעבודה ולא יקר.
מה אתם הכי אוהבים בשכונה?
הכי אוהבים את זה שמצד אחד זו עיר במרכז הארץ כך שהיא קרובה להכל, ומצד שני אין רעש ובלאגן מרגישים את השקט, זה כמו מושב בתוך עיר.
ויש הרבה משפחות צעירות בסטטוס דומה לשלנו, קל למצוא מכנה משותף.
לסיום, תארו לי אחר הצהריים טיפוסי אצלכם.
חן: אחרי שאני אוספת את הילדים מהגנים לפעמים נשארים בבית ולפעמים יורדים לגינה לשחק, לאחרונה שיפצו את הגינה שנמצאת ברחוב יהודה הנשיא, שם נפגשים עם חברים מהקהילה או מהגן.
גם בשבתות אגב הגינות המרכזיות מלאות.
לחץ כאן לכתבה המלאה
כמה זמן אתם גרים בפ"ת?
3 שנים.
למה החלטתם לבוא דווקא לפ"ת?
בחרנו לגור פה בגלל המגוון של האוכלוסייה, השכונה היא מעורבת וגרים בה דתיים וחילונים. קיים שם גיוון גם בתוך החברה הדתית עצמה.
וגם חיפשנו מקום שיהיה קרוב לעבודה ולא יקר.
מה אתם הכי אוהבים בשכונה?
הכי אוהבים את זה שמצד אחד זו עיר במרכז הארץ כך שהיא קרובה להכל, ומצד שני אין רעש ובלאגן מרגישים את השקט, זה כמו מושב בתוך עיר.
ויש הרבה משפחות צעירות בסטטוס דומה לשלנו, קל למצוא מכנה משותף.
לסיום, תארו לי אחר הצהריים טיפוסי אצלכם.
חן: אחרי שאני אוספת את הילדים מהגנים לפעמים נשארים בבית ולפעמים יורדים לגינה לשחק, לאחרונה שיפצו את הגינה שנמצאת ברחוב יהודה הנשיא, שם נפגשים עם חברים מהקהילה או מהגן.
גם בשבתות אגב הגינות המרכזיות מלאות.
דירוגי גולשים לשכונה
חברתי
סביבתי
נגישות
מה אתה חושב על השכונה או הישוב?
לחץ לדירוג
פורום שכונת "נווה גן"
+ הודעה חדשה
- מחפשים דירה יד 2 באזור??
שמרית- 18/06/15 18:25
- מתווך בפ"ת - מומלץ
שוקי- 18/06/15 18:26
- קירבה לקניון הגדול?
ניר- 18/06/15 18:22
- קוב מידי
קובי- 18/06/15 18:22

הכר את השכונה שלך 18213










































